Casa indipendente in vendita

Santa Croce Camerina, Via del Ginepro - Casuzze-Caucana
€ 156.000
4 locali 4 locali
160 Mq 160 Mq
2 bagni 2 bagni

Casa indipendente in vendita

Santa Croce Camerina, Via del Ginepro - Casuzze-Caucana

Descrizione annuncio

Tecnocasa Ragusa propone in vendita, a Casuzze, a pochi metri dalla spiaggia, casa indipendente con ampi spazi e un grande potenziale.

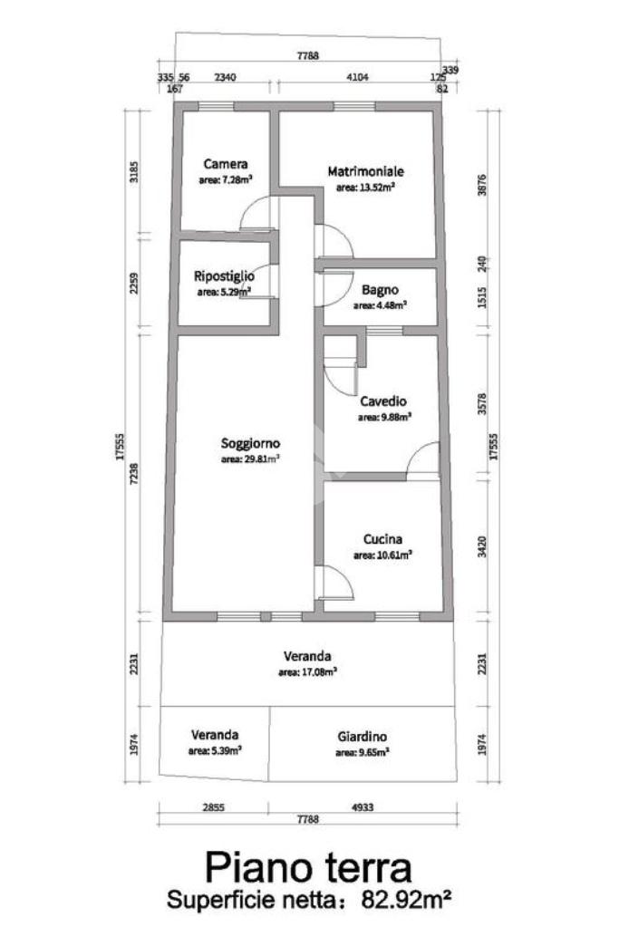
L'immobile si sviluppa su due livelli ed è composto, al piano terra, da una veranda, ingresso su un grande soggiorno luminoso, cucina con cavedio (dotato di doccia e punto acqua), due comode camere da letto, bagno e un grande ripostiglio.

Al piano superiore troviamo una mansarda con cucina e locali di sgombero, perfetta da trasformare in una seconda zona notte o in uno spazio indipendente per gli ospiti.

La casa, da ristrutturare, gode di una struttura solida e di due ingressi indipendenti che la rendono particolarmente interessante anche per un eventuale frazionamento.

Ottima posizione, a pochi passi dal mare, in una zona tranquilla e ben servita, ideale sia come casa vacanze che come investimento.

Visionabile tutti i giorni previo avviso telefonico.

Per ulteriori informazioni contattaci in Agenzia al numero 0932/1619482 o manda un WhatsApp al numero 389/6352082 che puoi aggiungere direttamente ai tuoi contatti, oppure inviaci un'email.

Seguici anche su facebook, cliccando 'mi piace' sulla pagina Gruppo Tecnocasa Ragusa Centro.

Un nostro agente sarà pronto a rispondere alle vostre domande con professionalità e cortesia.

Ogni Agenzia ha un proprio titolare ed è autonoma.

Le presenti informazioni non costituiscono elemento contrattuale.

Il nostro franchising, su richiesta, mette a vostra disposizione un consulente che si occuperà della mediazione creditizia e assicurativa.

Mostra tutto

Nelle vicinanze

Trasporto pubblico Trasporto pubblico
Capolinea Marina B
Capolinea Marina B
400 m
Capolinea Marina A
Capolinea Marina A
2,3 Km
Scuole Scuole
Scuole
2,3 Km
Scuola Primaria
2,8 Km
Farmacia Farmacia
Farmacia
2,5 Km
Supermercati Supermercati
Despar
810 m
Supermercati
2,0 Km
La Bottega dei Freschi Sapori
2,5 Km
Eurospar
2,9 Km
Supermercato Dimarket Sciacchitano
2,9 Km
Negozi Negozi
Supermercato Puglisi
130 m
San Francesco
200 m
Panificio
2,5 Km
Pane per i tuoi Denti
2,6 Km
Babilonia
2,6 Km
Bar Bar
Bar
700 m
Lido della Polizia
1,1 Km
Bar
2,0 Km
Ice
2,5 Km
7 Minuti
2,5 Km
Ristoranti Ristoranti
Al Buffo
170 m
Terrazzo Azzurro
170 m
Disco
170 m
Allue'
2,1 Km
Ristoranti
2,2 Km
Mostra tutto

Caratteristiche

Rif.:
61114923
Piano:
Basso di 2
Totale piani:
2
Camere da letto:
2
Arredamento:
Assente
Condizionamento:
Assente
Mostra tutto
Prezzo Prezzo
€ 156.000
Rata mutuo Rata mutuo
€ 692 / mese
Spese annue Spese annue
€ 0
Proponi il tuo prezzoProponi il tuo prezzo
Immobile valutato con TecnoValore

Classe Energetica

G
G
G
G
G
G
G
G
G
EP globale non rinnovabile:
1.00 kW h/m² anno
EP globale rinnovabile:
1.00 kW h/m² anno
EP invernale del fabbricato:
EP estiva del fabbricato:
Anno di costruzione:
1974
Riscaldamento:
Assente

Ti interessa visionare l'immobile?

Fissa un appuntamento  Fissa un appuntamento

Richiedi informazioni

* Questi campi sono obbligatori

Calcola il tuo mutuo

Semplice e senza impegno
Anticipo

( % )
Mutuo

( % )

pochi semplici passi

inserisci i tuoi dati
Questionario completato
Grazie per aver richiesto un appuntamento senza impegno con un nostro Consulente del Credito e Assicurativo.

Hai inserito correttamente tutti i dati necessari e a breve riceverai una e-mail con un link da convalidare per inviare i tuoi dati.
Affiliato
Ragusa Immobiliare D.I.
Via Archimede, 19/A 97100 Ragusa (RG)

Il nostro staff


  • Valeria Campo
    Coordinatrice

  • Salvatore D'Orio
    Affiliato
Via Archimede, 19/A 97100 Ragusa (RG)
Zona: Ragusa
Mostra su mappa
Orari: Dal lunedì al venerdì 08:30 - 13:00 / 16:00 - 19:00 Sabato 9:00 - 13:00
Affiliato
Ragusa Immobiliare D.I.
Via Archimede, 19/A 97100 Ragusa (RG)

2025 Tecnocasa Franchising S.p.A. - P. IVA 08365160152 - Via Monte Bianco 60/A 20089 Rozzano (MI). Ogni agenzia ha un proprio titolare ed è autonoma. Privacy policy | Policy utilizzo | Cookie policy