Porzione di bifamiliare in vendita

Ragusa, Via Falconara - Marina Di Ragusa
€ 330.000
4 locali 4 locali
138 Mq 138 Mq
1 bagno 1 bagno

Porzione di bifamiliare in vendita

Ragusa, Via Falconara - Marina Di Ragusa

Descrizione annuncio

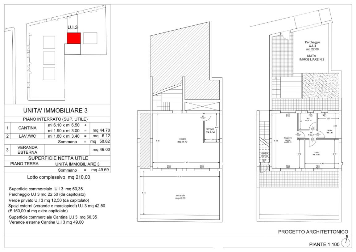
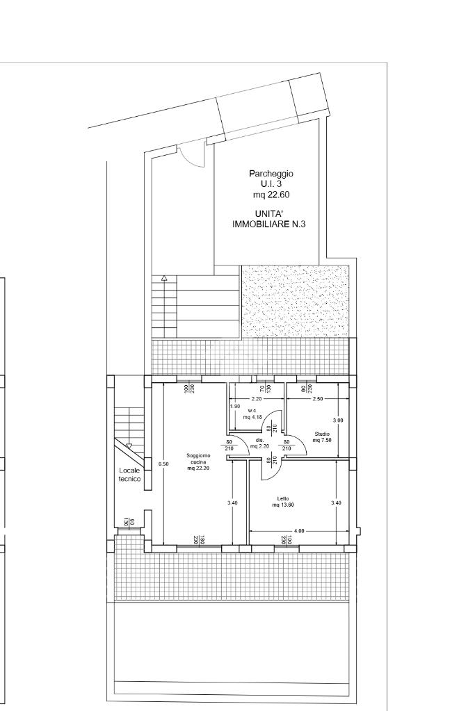
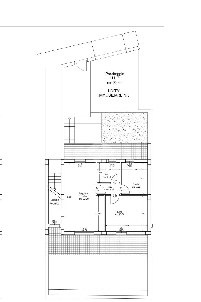
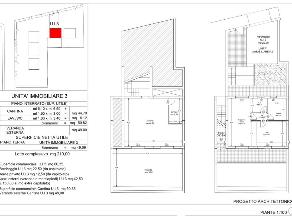
Tecnocasa Ragusa propone in vendita a pochi passi dal mare, un prestigioso appartamento di nuova costruzione in Via Falconara Marina di Ragusa il tutto a pochi minuti dai principali servizi.

L’abitazione si sviluppa su due livelli per una superficie interna di mq 69 con giardino privato di mq 85 ed un piano interrato di altri mq 69 con veranda da mq 49, inoltre ha un posto auto di pertinenza di mq 30 .L'immobile è composto da un soggiorno/cucina, camera matrimoniale, camera da letto e bagno.

Attualmente l’appartamento è in fase di costruzione con termine dei lavori previsto per maggio 2026. L'immobile inoltre prevede un impianto fotovoltaico di 3.00kw con impianto elettrico di nuova generazione che porta l'immobile ad essere un A2. Inoltre contiene anche una cisterna d'acqua di 5.000L ed un sistema di produzione di acqua calda sanitaria.

Visionabile tutti i giorni previo avviso telefonico.

Per ulteriori informazioni contattaci in Agenzia al numero 0932/1619482 o manda un WhatsApp al numero 389/6352082 che puoi aggiungere direttamente ai tuoi contatti, oppure inviaci un'email.

Seguici anche su facebook, cliccando 'mi piace' sulla pagina Gruppo Tecnocasa Ragusa Centro.

Un nostro agente sarà pronto a rispondere alle vostre domande con professionalità e cortesia.

Ogni Agenzia ha un proprio titolare ed è autonoma.

Le presenti informazioni non costituiscono elemento contrattuale.

Il nostro franchising, su richiesta, mette a vostra disposizione un consulente che si occuperà della mediazione creditizia e assicurativa.

Mostra tutto

Nelle vicinanze

Trasporto pubblico Trasporto pubblico
Capolinea Marina A
Capolinea Marina A
680 m
Capolinea Marina B
Capolinea Marina B
1,8 Km
Scuole Scuole
Scuole
650 m
Scuola Primaria
990 m
Farmacia Farmacia
Farmacia
820 m
Supermercati Supermercati
Supermercati
690 m
La Bottega dei Freschi Sapori
770 m
Despar
820 m
Eurospar
1,0 Km
MD
1,5 Km
Negozi Negozi
Panificio
760 m
Pane per i tuoi Denti
820 m
Babilonia
920 m
San Francesco
2,0 Km
Supermercato Puglisi
2,0 Km
Bar Bar
Bar
710 m
Tempo di Vino
790 m
Ice
800 m
7 Minuti
810 m
Non solo pizza
840 m
Ristoranti Ristoranti
La Cantinita
720 m
Shosoloza
730 m
Allue'
730 m
Ristoranti
730 m
L'Abbuffata
760 m
Mostra tutto

Caratteristiche

Rif.:
61105003
Piano:
1 di 4 (Piano alto)
Posti auto:
1
Balconi:
3
Camere da letto:
2
Arredamento:
Completo
Mostra tutto
Prezzo Prezzo
€ 330.000
Rata mutuo Rata mutuo
€ 1.555 / mese
Spese annue Spese annue
€ 0
Proponi il tuo prezzoProponi il tuo prezzo

Classe Energetica

A2
A2
A2
A2
A2
A2
A2
A2
A2
EP invernale del fabbricato:
EP estiva del fabbricato:
Anno di costruzione:
2025
Riscaldamento:
Autonomo
Tipo impianto:
Ad aria
Tipo alimentazione:
Altro

Ti interessa visionare l'immobile?

Fissa un appuntamento  Fissa un appuntamento

Richiedi informazioni

Clicca su Leggi per aprire l'informativa
* Questi campi sono obbligatori

Calcola il tuo mutuo

Semplice e senza impegno
Anticipo

( % )
Mutuo

( % )

pochi semplici passi

inserisci i tuoi dati
Questionario completato
Grazie per aver richiesto un appuntamento senza impegno con un nostro Consulente del Credito e Assicurativo.

Hai inserito correttamente tutti i dati necessari e a breve riceverai una e-mail con un link da convalidare per inviare i tuoi dati.
Affiliato
Ragusa Immobiliare D.I.
Via Archimede, 19/A 97100 Ragusa (RG)

Il nostro staff


  • Valeria Campo
    Coordinatrice

  • Salvatore D'Orio
    Affiliato
Via Archimede, 19/A 97100 Ragusa (RG)
Zona: Ragusa
Mostra su mappa
Orari: Dal lunedì al venerdì 08:30 - 13:00 / 16:00 - 19:00 Sabato 9:00 - 13:00
Affiliato
Ragusa Immobiliare D.I.
Via Archimede, 19/A 97100 Ragusa (RG)

2026 Tecnocasa Franchising S.p.A. - P. IVA 08365160152 - Via Monte Bianco 60/A 20089 Rozzano (MI). Ogni agenzia ha un proprio titolare ed è autonoma. Privacy policy | Policy utilizzo | Cookie policy