Casa indipendente in vendita

Ragusa, Via Portovenere - Marina Di Ragusa
Informazioni in agenzia
2 locali 2 locali
90 Mq 90 Mq
2 bagni 2 bagni

Casa indipendente in vendita

Ragusa, Via Portovenere - Marina Di Ragusa

Descrizione annuncio

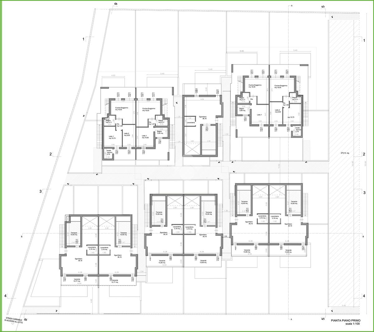
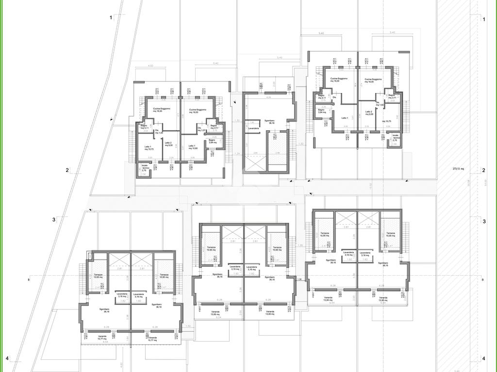
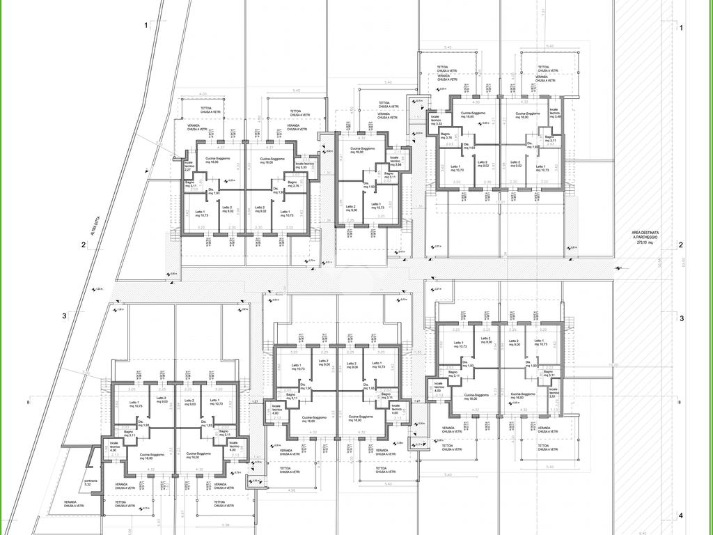
Ville di Nuova Costruzione – Marina di Ragusa, Contrada Castellana

Tecnocasa Ragusa propone in vendita esclusive ville bifamiliari di nuova costruzione, situate in una posizione privilegiata a Marina di Ragusa, in Contrada Castellana, a pochi passi dal mare.

Il progetto prevede la realizzazione di un elegante complesso residenziale, con splendida vista mare panoramica e ampi spazi verdi privati, costituito da sei corpi di fabbrica per un totale di undici complessi abitativi.

Ogni villa, distribuita su due livelli per un totale di circa 90 mq interni, è dotata di vasca idromassaggio, area solarium illuminata, docce esterne, posto auto e verande coperte per vivere al meglio gli spazi all’aperto.

Grazie alla presenza di una scala esterna, i due piani sono autonomi e possono essere acquistati anche separatamente, offrendo così una soluzione flessibile perfetta per chi desidera due unità indipendenti oppure una casa principale con appartamento annesso.

Il progetto è personalizzabile: l'intervento edilizio, già approvato, consente modifiche su misura in base alle esigenze del cliente.

Dotazioni principali:

Giardini privati curati e attrezzati con impianto di irrigazione

Impianto fotovoltaico da almeno 3 kWh e pannello solare per acqua calda

Serbatoio interrato per acqua potabile da 5.000 litri

Pavimenti in gres porcellanato effetto legno (prima scelta)

Infissi in PVC Classe A a taglio termico

Impianti elettrici avanzati, predisposti per:

Domotica

Tapparelle motorizzate

Accensione luci ed elettrodomestici da remoto

Climatizzazione centralizzata e autonoma per ogni unità

Scelta di materiali e finiture da capitolato di alta qualità, possibilità di personalizzazione degli arredi e piscina.

Queste ville rappresentano una soluzione ideale per chi cerca una residenza moderna ed efficiente a pochi metri dal mare, perfetta sia come abitazione principale, casa vacanze, che investimento a reddito in una delle località più ambite della costa siciliana.

Contattaci per maggiori informazioni o per fissare un appuntamento. Tecnocasa Ragusa Centro è al tuo fianco per accompagnarti verso la casa dei tuoi sogni.

Visionabile tutti i giorni previo avviso telefonico.

Per ulteriori informazioni contattaci in Agenzia al numero 0932/1619482 o manda un WhatsApp al numero 389/6352082 che puoi aggiungere direttamente ai tuoi contatti, oppure inviaci un'email.

Seguici anche su facebook, cliccando 'mi piace' sulla pagina Gruppo Tecnocasa Ragusa Centro.

Un nostro agente sarà pronto a rispondere alle vostre domande con professionalità e cortesia.

Ogni Agenzia ha un proprio titolare ed è autonoma.

Le presenti informazioni non costituiscono elemento contrattuale.

Il nostro franchising, su richiesta, mette a vostra disposizione un consulente che si occuperà della mediazione creditizia e assicurativa.

Mostra tutto

Nelle vicinanze

Trasporto pubblico Trasporto pubblico
Capolinea Marina A
Capolinea Marina A
910 m
Capolinea Marina B
Capolinea Marina B
3,0 Km
Scuole Scuole
Scuola Primaria
350 m
Scuole
930 m
Farmacia Farmacia
Farmacia
660 m
Supermercati Supermercati
MD
300 m
Eurospar
370 m
Supermercati
540 m
La Bottega dei Freschi Sapori
640 m
Despar
1,9 Km
Negozi Negozi
Pane per i tuoi Denti
590 m
Babilonia
630 m
Panificio
720 m
Bar Bar
Non solo pizza
670 m
Tempo di Vino
730 m
Ice
740 m
7 Minuti
750 m
Met
760 m
Ristoranti Ristoranti
Andrea Doria
470 m
Lido Margarita
480 m
Lido Baja
490 m
Lido Il Delfino
570 m
Miramare
580 m
Mostra tutto

Caratteristiche

Rif.:
61112971
Piano:
2 di 2 (Piano su più livelli)
Posti auto:
1
Terrazzi:
1
Arredamento:
Assente
Condizionamento:
Autonomo
Mostra tutto
Prezzo Prezzo
Informazioni in agenzia
Proponi il tuo prezzoProponi il tuo prezzo

Classe Energetica

A2
A2
A2
A2
A2
A2
A2
A2
A2
EP globale non rinnovabile:
1.00 kW h/m² anno
EP globale rinnovabile:
1.00 kW h/m² anno
EP invernale del fabbricato:
EP estiva del fabbricato:
Anno di costruzione:
2025
Riscaldamento:
Assente

Ti interessa visionare l'immobile?

Fissa un appuntamento  Fissa un appuntamento

Richiedi informazioni

Clicca su Leggi per aprire l'informativa
* Questi campi sono obbligatori
Affiliato
Ragusa Immobiliare D.I.
Via Archimede, 19/A 97100 Ragusa (RG)

Il nostro staff


  • Valeria Campo
    Coordinatrice

  • Salvatore D'Orio
    Affiliato
Via Archimede, 19/A 97100 Ragusa (RG)
Zona: Ragusa
Mostra su mappa
Orari: Dal lunedì al venerdì 08:30 - 13:00 / 16:00 - 19:00 Sabato 9:00 - 13:00
Affiliato
Ragusa Immobiliare D.I.
Via Archimede, 19/A 97100 Ragusa (RG)

2026 Tecnocasa Franchising S.p.A. - P. IVA 08365160152 - Via Monte Bianco 60/A 20089 Rozzano (MI). Ogni agenzia ha un proprio titolare ed è autonoma. Privacy policy | Policy utilizzo | Cookie policy